Summary
This product applies vacuum arc-extinguishing chamber. It features with reliable operation, long electric life and easy maintenance,
breaking and making power supply frequently. The operation mechanism is inside switch gear combining disconnector, load break switch
and earthing switch into one. It has compactable dimension and small weight.
The disconnect gap lies in a serial with the vacuum arc-extinguishing chamber.
The large dynamic stable current and thermal stable current, the interlinked procedures assure the operation coherently.
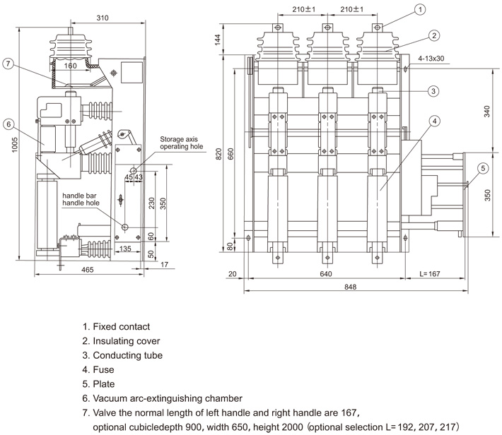
Busbar and load break switch are separated fully by cone fixed contact, insulating cover and valve. Vacuum load break switch, earthing
switch, valve and cubicle door are interlocked according to "5 protections" to prevent from miss-operation. The spring storage operation mechanism
can be both operated by independent manual and motor to realize remote control. The CO operating power can be AC or DC source.
Manual operation is generally on the right of switch, but can be changed to the left or obverse according to user's requirement. It is
made as per IEC62271-105.
Ambient conditions
1. Altitude: 1000m;
2. Ambient temperature: -25 ~+40 ;
3. Relative humidity: daily average 95 , monthly average 90 ;
4. Earthquake intensity: 8 degree;
5. Applicable occasions should free from inflammables, explosives,corrosives and severe vibration.
Technical specification
FZN25-12D Vacuum load break switch and FZRN25-12D Combination
| No. |
Item |
Unit |
FZN25-12D/T630-20 |
FZRN25-12D/T200-31.5 |
| 1 |
Rated voltage |
kV |
12 |
| 2 |
Rated current |
A |
630 |
≤200 |
| 3 |
Rated frequency |
Hz |
50/60 |
| 4 |
Rated
insulating
level |
1min. PF withstand voltage |
kV |
arcing chamber gaps:30, phase to earth, phase to phase:42, across open contacts:48 |
| 5 |
lightning impulse withstand voltage(peak) |
kV |
phase to phase:75, across open contacts:85 |
| kV |
| 6 |
Rated short-time withstand current(thermal stable current) |
kA |
20 |
- |
| 7 |
Rated short-circuit duration |
s |
4 |
- |
| 8 |
Rated peak withstand current(dynamic stable current) |
kA |
50 |
- |
| 9 |
Rated active load breaking current |
A |
630 |
- |
| 10 |
Rated breaking current of closed-loop |
A |
630 |
- |
| 11 |
Rated breaking current of charging cable |
A |
10 |
- |
| 12 |
Rated breaking no-load transformer capacity |
kVA |
1600 |
| 13 |
Rated short-circuit breaking current |
kA |
- |
31.5 |
| 14 |
Rated transfer current |
A |
- |
2000 |
| 15 |
Fuse model |
|
- |
SDLAJ-12/SFLAJ-12 |
| 16 |
Output power of impinger |
J |
- |
2-5 |
| 17 |
Rated short-circuit making current |
kA |
- |
- |
| 18 |
Rated short-time withstand current of earthing switch(thermal stable current) |
kA |
20 |
| 19 |
Rated short-circuit duration of earthing switch |
s |
2 |
| 20 |
Rated voltage of auxiliary loop |
V |
∽220, 110 |
| 21 |
Mechanical life |
Times |
10,000 |
|
Mechanical specification of FZN25-12D and FZRN25-12D
| No. |
Item |
Unit |
FZN25-12D/T630-20 |
FZRN25-12D/T200-31.5 |
| 1 |
Clearance between electrified parts/ to earth |
mm |
≥125 |
| 2 |
The thickness of conducting tube inject into fixed contacting base |
mm |
≥18 |
| 3 |
Clearance between fixed and moving contact |
mm |
 |
| 4 |
Spring decrement under contact pressrue |
mm |
 |
| 5 |
Average closing speed of arc-extinguishing chamber |
m/s |
0.9±0.5 |
| 6 |
Average opening speed of arc-extinguishing chamber |
m/s |
0.6±0.2 |
| 7 |
Opening spring time |
ms |
≤2 |
| 8 |
Three poles C/O asynchronous |
ms |
≤3 |
| 9 |
Main circuit resistance |
μΩ |
≤150 |
≤300 |
| 10 |
Maximum moment of manual operation |
N.m |
≤160 |
| 11 |
Opening time actuated by fuse |
ms |
- |
30-40 |
| 12 |
Opening time actuated by release |
ms |
40-45 |
|
Outline dimension